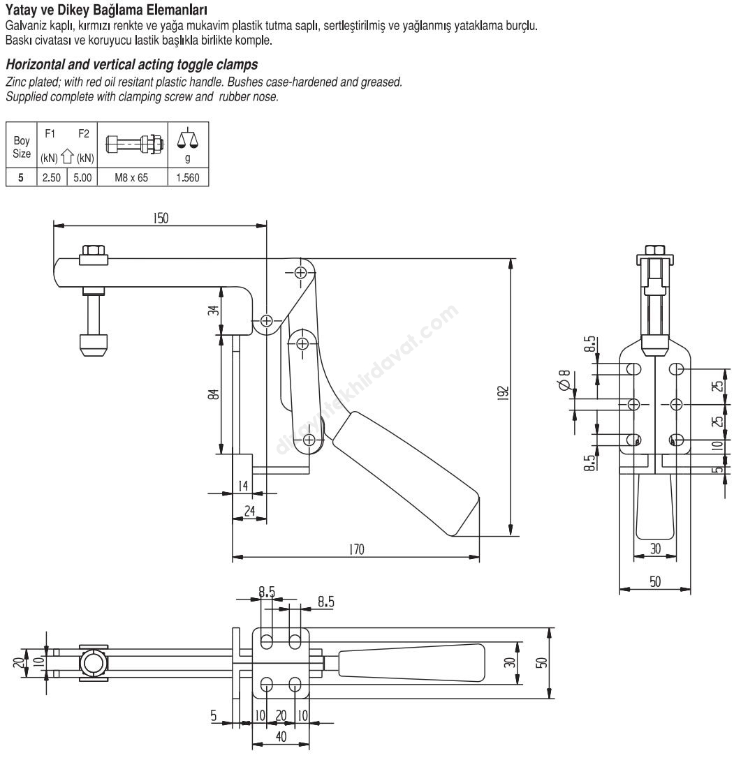
yatay-baglama-elemanlari-m25-cizmak-teknikdata-dizayntekhirdavat